сряда, 31 януари 2018 г.
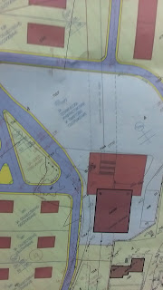
Проекто план за регулация и застрояване на местност Симеоново - лифтова станция
http://raionvitosha.eu/uploads/docs%2015/simeonovoObqva.pdf
Предвижда
се продължаване на лифта към околовръстното, намаляване на паркинга за
сметка на новите улици към комплексите, още едно петно за застрояване на
двуетажна лифтова станция в рамките на парцела, сервитут за нови лифт
към мола. Нов лифт към мола е малко вероятен и скъп, но кой знае
сряда, 10 януари 2018 г.
Опорките за Витоша
Без да питам Тома Белев, препечатват неговата статия, с няколко малки допълнения в крусив от мен:
петък, 5 януари 2018 г.
Банско и границата на растежа 2012 г.
Експертно мнение от арх. Петко Еврев, който през далечната 1986 г. ръководеше колектива, разработил план-концепция за устройство на ски-зона Банско.
Абонамент за:
Коментари (Atom)
ОЩЕ ПОПУЛЯРНИ ПУБЛИКАЦИИ
-
До: МИНИСТЕРСТВО НА ОКОЛНАТА СРЕДА И ВОДИТЕ ИЗПЪЛНИТЕЛНА АГЕНЦИЯ ПО ОКОЛНА СРЕДА СТОЛИЧНА ОБЩИНА "ВИТОША СКИ" АД ДИРЕКЦИЯ НА ...
-
Публикувам извадка от интервюто на Президента на БФСки Цеко Минев за "7 дни спорт" от Вал д'Изер, където той следи световното ...
-
Цеко Минев е основния двигател на новите проекти на Витоша и поради това считам за важно систематично да подредя данните, които са публи...
-
В продължение на темата за прозрачността на проекта на "Витоша ски" и предложените от тях лифтове, аз се постарах да изработя под...
-
Tseko Minev is Bulgarian banker, president of the Bulgarian ski federation and is supposed of controlling two of the leading ski resorts inc...



















